发布:2023-07-03
浏览:251

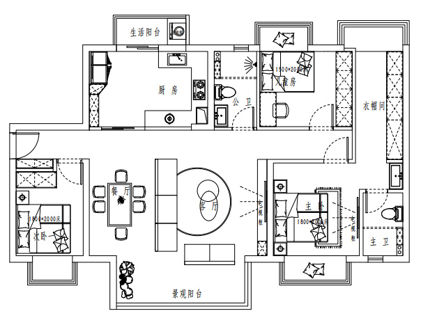
原户型图

现户型图

改造优化
1.将五室改三室,增加居住空间
2.之前与客厅相邻的卧室打通,客厅变成横厅的设计,把阳台打通,增加空间亮度。
3.把之前与衣帽间相邻的卧室打通,变成儿童房与主卧的一部分。
业主设计需求
本案屋主是两位90后的模范夫妻,他们有一个活泼可爱的小孩子,对于家,他们有自己独到的见解,他们希望家是舒服的、精简的。希望把空间无限放大,小孩能自由奔跑,没有束缚,营造一个无限想象的家。
设计理念
设计师以“无间道”作为设计灵感,把有限的空间无限化。巧妙的运用光线、吊顶、瓷砖、艺术漆元素,勾勒出一个大宅风范的家。


玄关
玄关一门通顶1.5米的鞋柜,膜感的柜门,触感光滑,抗污性好,便于打扫,有股淡淡的清香。拉手做了一公分的设计,方便拉开。鞋柜镂空部分放置的柿子装饰品寓意着生活红红火火、事事如意。



客厅
会客厅空间灰色的瓷砖低调温暖,张弛有度。无主灯的设计,动静相结合,营造出虚实的律动感,突出房子的本色。
会客厅个性化的吊顶造型,独领风骚。自然光与灯光交织在一起,让光与影的层次更加分明。中央空调配置,温度均匀,舒适度高,省空间,使用寿命长。


客厅绿色的皮质沙发,一抹绿意从中穿过,弱化原来空间的色调,调节人们的心情,让空间富有情调,营造出轻松暖意的氛围。一株绿植摆放在沙发旁,净化空气,让干涸的心被绿意填满,让我们的身心承载满满的幸福。

餐厅
客餐厅开放式的设计,一面会客厅,一面美食餐厅,在餐厅,设计师充分发挥软装实力,仅凭几张靠背椅+一张餐桌,解放空间区域,与会客厅互动,增加彼此交流。


餐厅整体的设计没有过于繁杂,以低调为主,回归本真的包容,游走在自然光和灯光中的餐厅,把阖家团圆亲密的餐桌文化更好的体现。餐桌是主角,美食是配角,相互成就彼此。每一天一桌美食,一家人,都能感受家的仪式感。一侧作为酒柜,放置珍藏的白酒和红酒,酒的储藏,酒装饰生活。

厨房
厨房U型设计,扩大空间,烹饪分工明确。大单盆清洗比较方便。



橱柜覆膜感的无把手的柜门设计,光泽度好,抗污能力强,还有一定的阻燃效果,不易积灰,让家居环境更整洁和有品位。抽油烟机我们选择方太品牌,它清除油烟味快,减少有害气体对人体的伤害,起到了净化空气的作用。一整排的储物柜,起到了收纳的作用,同时它还可以把双开门冰箱嵌入,保鲜效果好。厨房小阳台摆放着一个洗衣柜,洗衣方便,合理的利用空间。


阳台
阳台封窗,我们选择一个超大落地玻璃窗,视野非常开阔,可以看到洋浦星小区的全景,景入眼,眼观之。一边的封窗还做了个格子窗,非常有艺术感。两个落地灯,淡淡暖光落下,温暖之极。



主卧
主卧摆放了一个2米的大床,质朴大气,延用了整体的装修风格,双眼皮的吊顶,避免积灰,好打理,更好的保留层高,层次递增,造型百搭,颜值高。床尾的背景墙悬挂着电视,躺在床上看电视、电影,有了一个私人的小影院。超大定制衣柜,储物功能强大,收纳得心应手。

主卫
主卫采用现在流行的干湿分离设计,把洗漱与洗浴分开,互不影响,灰色的瓷砖游走在整个空间,很好的调和空间的色彩,温和整个空间。百搭的色调,让空间低调有气质。


客卧
客房配置一个1.5米的床和1.5米的衣柜,床单植物叶片来装饰,自然元素从中而来,而木质衣柜,让衣物、被褥有了一份淡然的清香。风扇灯把风扇和灯合二为一,节省安装空间,还不占地方,风速大且又平稳,感受风的柔和舒适。墙面运用艺术漆装饰,美观又环保,既防水又防燃。



儿童房
儿童房内嵌式衣柜,节省空间,灵活度高,使用寿命长,保质又保量。床垫选择比较舒适的弹簧床,很耐用,透气性好。自带飘窗,增大室内的面积,采光好视野好。

洗手间
洗手间一进门就是洗漱池,方便快捷的洗漱。墙面置物架镶嵌其中,毛巾的晾干处,避免细菌的滋生。洗漱间与沐浴间由一道玻璃推拉门隔开,分成两个部分,互不打扰,避免异味进入到其它空间。